12A Alice Street, Turramurra
Spacious 5 bedrooms Family Home with Pool
TO APPLY: www.2apply.com.au/agency/AssetRealtyGordon and click "APPLY" on this property.
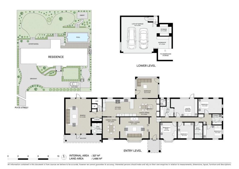
This single level family residence is located on the east side. The accommodation comprises of four bedrooms with a study/5th bedroom, all with built-ins and the master with ensuite.
The open plan kitchen provides benchtop and appliances including dishwasher, fit for the family or a setting for that breakfast on the run. Formal and informal entertaining areas are well proportioned and flow seamlessly away from the bedrooms. For comfort, the northerly aspect attracts all season natural light throughout the home with ducted reverse cycle air conditioning.
Within the Wahroonga public school zone and close to Sydney's most prestigious private schools such as Knox Grammar, Pymble Ladies College, Abbotsleigh and Barker College.
Property Features Include:
* Brick residence with northerly aspect
* Master bedroom with built-in robe and Ensuite. 3 additional bedrooms with built-in wardrobes plus a study or 5th bedroom
* Formal dining and lounge room with fireplace
* Large rumpus room opening to rear terrace
* Bright sunroom with stone flooring and automated blinds
* Open plan kitchen with stone bench tops, Miele appliances, dishwasher and gas cooktop
* Landscaped gardens with paved outdoor area
* 3 bathrooms plus additional outside toilet
* Double lock-up garage with heaps of storage, ducted reverse cycle air and gas connected
* Walk to Wahroonga Public School, local shops and Turramurra Station
Disclaimer: Asset Realty believes that this information is correct but does not warrant or guarantee the accuracy of the information. Certain information has been obtained from external sources and has not been independently verified. You should make your own enquiries and check the information.
This single level family residence is located on the east side. The accommodation comprises of four bedrooms with a study/5th bedroom, all with built-ins and the master with ensuite.
The open plan kitchen provides benchtop and appliances including dishwasher, fit for the family or a setting for that breakfast on the run. Formal and informal entertaining areas are well proportioned and flow seamlessly away from the bedrooms. For comfort, the northerly aspect attracts all season natural light throughout the home with ducted reverse cycle air conditioning.
Within the Wahroonga public school zone and close to Sydney's most prestigious private schools such as Knox Grammar, Pymble Ladies College, Abbotsleigh and Barker College.
Property Features Include:
* Brick residence with northerly aspect
* Master bedroom with built-in robe and Ensuite. 3 additional bedrooms with built-in wardrobes plus a study or 5th bedroom
* Formal dining and lounge room with fireplace
* Large rumpus room opening to rear terrace
* Bright sunroom with stone flooring and automated blinds
* Open plan kitchen with stone bench tops, Miele appliances, dishwasher and gas cooktop
* Landscaped gardens with paved outdoor area
* 3 bathrooms plus additional outside toilet
* Double lock-up garage with heaps of storage, ducted reverse cycle air and gas connected
* Walk to Wahroonga Public School, local shops and Turramurra Station
Disclaimer: Asset Realty believes that this information is correct but does not warrant or guarantee the accuracy of the information. Certain information has been obtained from external sources and has not been independently verified. You should make your own enquiries and check the information.
Inspection
17
Jan
Saturday, 10:30 am - 11:00 am
Add To Calendar
