1 Ailsa Close EAST LINDFIELD NSW 2070
- 5
- 3
- 2
Idyllic Family Home with Emphasis on Lifestyle
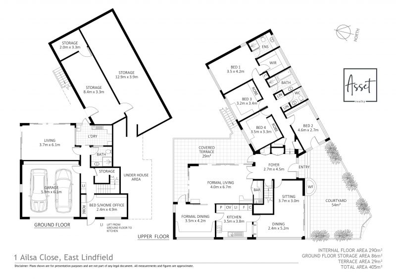
Designed to maximise its sundrenched position, this spacious North facing, architecturally designed family home on 1,005 sqm (approx.) is sited in one of East Lindfield's highly sought-after pockets. Boasting breathtaking Middle Harbour water and Garigal National Parkland vistas, this generous family home with spacious formal and casual living areas all flow seamlessly to sunny balconies ideal for a relaxed outdoor entertaining. Tightly held by the same family since 1971, it offers an exciting opportunity... [More]
Idyllic Family Home with Emphasis on Lifestyle
Designed to maximise its sundrenched position, this spacious North facing, architecturally designed family home on 1,005 sqm (approx.) is sited in one of East Lindfield's highly sought-after pockets. Boasting breathtaking Middle Harbour water and Garigal National Parkland vistas, this generous family home with spacious formal and casual living areas all flow seamlessly to sunny balconies ideal for a relaxed outdoor entertaining. Tightly held by the same family since 1971, it offers an exciting opportunity to further enhance and capitalise on its tranquil cu-de-sac setting.
Close to East Lindfield shopping village and located within the coveted Lindfield East Public and Killara High School catchment zone, it's a short walk to bus services to Lindfield station, Chatswood and Sydney's CBD.
Property highlights:
- Double brick, architecturally designed, North facing family home in sought after enclave
- Wide entry placed at the highest point with the house angled to maximize the view
- Multiple living areas flowing seamlessly to the array of alfresco entertaining spaces
- Centrally located kitchen framed by both the formal and relaxed living/dining zones
- Northwesterly verandah bathed in far-reaching National Park and Middle Harbour views
- Sun-soaked 11 x 5m north-facing pool with parkland backdrop and child-friendly lawns
- Northeasterly accommodation wing consisting of four bright and airy bedrooms
- In-law/guest living or office downstairs ideal for today's working from home lifestyle
- R/C aircon, original timber fixtures and doors, wet bar and custom built-ins
- Internal access to a double lock-up garage, workshop and abundant under-house storage
- Leafy east-side location footsteps to station and city buses, close to schools and shops
- A must to inspect
Disclaimer: Asset Realty Gordon believes that this information is correct but does not warrant or guarantee the accuracy of the information. Certain information has been obtained from external sources and has not been independently verified. You should make your own enquiries and check the information [Less]
Agent Details
Email Agent
Property information
- Type Residential Sale
- Price SOLD
- Property Type House
- Walkscore View
